Tenure: leasehold
Available from 1st July 2026
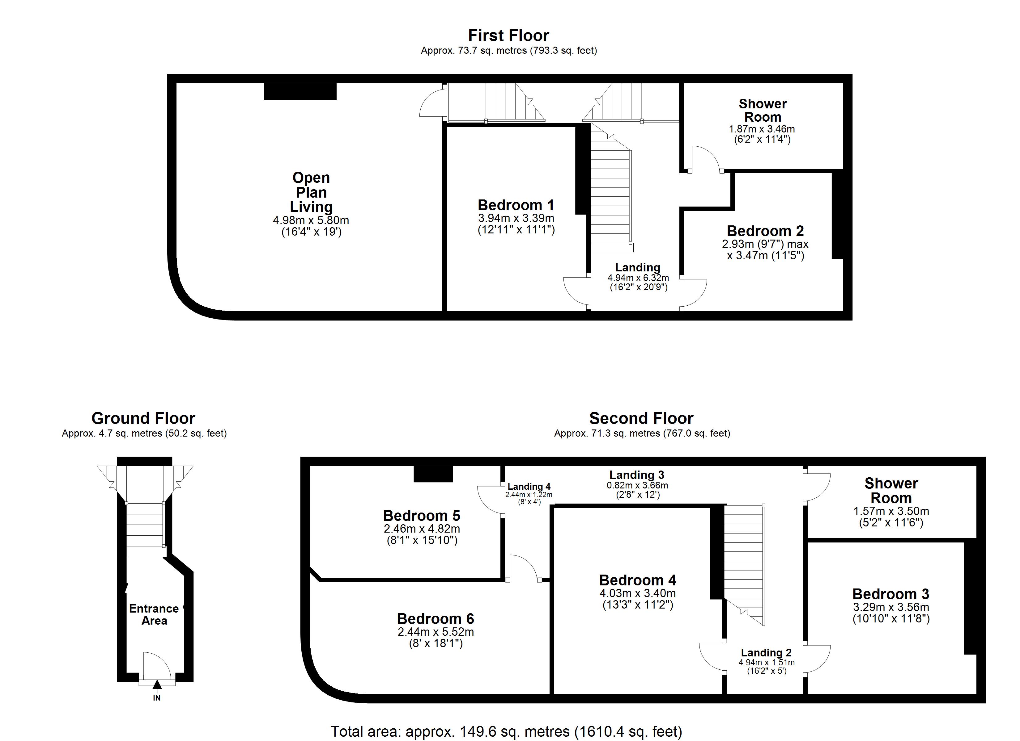
READY FOR 2026/27! STUNNING 6 BED APARTMENT - BORROWDALE ROAD - NEXTDOOR TO SMITHDOWN RD!
We are pleased to present this simply stunning property located ideally for Liverpool City Centre and Universities. The incredibly popular Smithdown Road is literally on your doorstep with its variety of bars and cafes and with a direct bus route to the heart of the city centre, it makes it a perfect location for students.
Packed with period features and large rooms, this apartment consists of a new kitchen complete with breakfast bar, oven, hob and a large American-Style fridge freezer. Free laundry facilities are also provided in the form a washer / dryer. There is a large living area with contemporary furnishings and large wall mounted TV.
There are SIX bedrooms in total. Rooms are fully furnished with DOUBLE BED, desks, chairs and wardrobes. There are also TWO large shower rooms each complete with shower, toilet and sink. Externally there is plenty of free on-street parking available.
Viewings HIGHLY recommended for this stunning property,
Utility bills included in the weekly price - gas, electric, water, TV licence and broadband!
Flat 5, 63 South Street, Reading
Flat 2, 109 Oxford Road, Reading
London Road, Reading, Reading
Flat 1, 240 Whitley Wood Road, Reading, Reading
Fulmead Road, Reading, Reading
Flat 5, 240 Whitley Wood Road, Reading, Reading
Flat 4, 240 Whitley Wood Road, Reading, Reading
Flat 3, 240 Whitley Wood Road, Reading, Reading
Flat 2, 240 Whitley Wood Road, Reading, Reading
Basildon House Iliffe Close, Reading, Reading
Flat 4, 242 Whitley Wood Road, Reading, Reading
Flat 5, 242 Whitley Wood Road, Reading, Reading
Flat 2, 242 Whitley Wood Road, Reading, Reading
Flat 1, 242 Whitley Wood Road, Reading, Reading
Flat 3, 242 Whitley Wood Road, Reading, Reading
Flat 4, 2 West Street, Reading, Reading
Flat 2, 2 West Street, Reading, Reading
Flat 1, 2 West Street, Reading, Reading
Flat 2, 109A Oxford Road, Reading
Flat 3, 2 West Street, Reading, Reading
Simmonds, Flat 5, Reading
Simmonds, Flat 7, Reading
Flat 4,Reading, 27 Castle Street, Berkshire
7a, Rydal Avenue, Tilehurst, Reading,Berkshire